Обяви 0 За нас Контакти
Продава 3-СТАЕН
град Варна, Възраждане 4
246 000 €
481 134.18 лв.

(2 000 €, 3 911.66 лв./m2)
Цената е с включено ДДС
История на цената
Публикувана в 13:26 на 25 септември, 2025 год.
Обявата е посетена 815 пъти.
Площ:
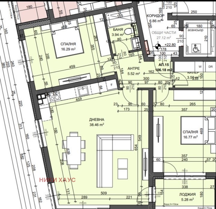
123 m2
Етаж:
8-ми от 9
Газ:
НЕ
ТEЦ:
НЕ
Строителство:
Тухла, Ще бъде въведен в експлоатация 2026 г.

Описание на имота:


Представяме Ви тристаен апартамент в новострояща се сграда пред акт 15 в кв. Възраждане.

Имотът е с площ от 123 кв.м.,ситуиран на осми(предпоследен) етаж .

Изключително просторно жилище с югозападно изложение.

Разпределението е както следва:

- две спални по 17 квадратни метра (едната с излаз на тераса)

- просторна всекидневна с кухненска част с площ 37 квадратни метра и панорама към града и езерото

-килер-перално(възможност да се преустрои във втора баня

-комбиниран санитарен възел

-тераса

Към имота има на партерно ниво избено помещение с площ7м2.с отделен идентификатор.

Жилището се издава по БДС. Има опция за закупуване на паркомясто18 кв.м.

За повече информация и огледи:

Калина Димитрова тел 0899920051

реф.номер003734
Особености
Тухла
Асансьор
За контакт:
0899920051
Агенция:
НИКИ ХАУС
0899920051
Медал за прослужено време
В imot.bg от 2022 г.
katerina75.imot.bg
Адрес:
област Варна, гр. Варна, Ул. Злетово 11
ИЗПРАТИ ЗАПИТВАНЕ
ИЗПРАТИ ЗАПИТВАНЕТО

Продава 3-СТАЕН
град Варна, Възраждане 4
Обява: 1c175879598778626

246 000 €
481 134.18 лв.
История на цената
(2 000 €, 3 911.66 лв./m2)

Цената е с включено ДДС
ЗАПАЗИ ОБЯВАТА

Местоположение: град Варна, Възраждане 4

Допълнителни данни за имотите в района и сравнение с други райони

Покажи

Период

и 5 месеца

* Средните цени са определени чрез медианна стойност